Lotus Center 1
Khu chợ trung tâm thương mại và nhà phố thương mại
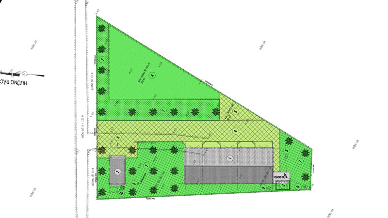
Đặc điểm về kinh tế xã hội của khu vực dự án là trung tâm của huyện Nam Đàn, với nhu cầu về kinh doanh thương mại hộ cá thể rất lớn. Thực tế chợ Sa Nam hiện nay chưa đáp ứng được. Giải pháp tổ chức quy hoạch sẽ dành một phần đáng kể trong khu vực dự án để bố trí các không gian kinh doanh buôn bán dạng chợ truyền thống, dạng trung tâm thương mại và dạng nhà phố thương mại. Để mô hình không gian này trên thực tế đi vào hoạt động hiệu quả, 3 mô hình này phải được gắn kết chặt chẽ, hỗ trợ lẫn nhau về cấu trúc, về giao thông và về không gian.
Khu công trình công cộng được bố cục phía bắc khu đất, gồm trung tâm thương mại và chợ được bố trí thành một cụm trung tâm được kết nối trực tiếp với quốc lộ 46 để tạo sự thuận tiện trong giao thông và tạo sự tập trung cao trong chức năng thương mại. Bên cạnh khu chợ và trung tâm thương mại, các nhà ở có chức năng thương mại một phần (chức năng thương mại tại tầng 1) sẽ được bố trí vây xung quanh và hướng mặt tiền vào khu trung tâm Chợ-Thương mại này.
Do khu vực dự án là trung tâm của huyện Nam đàn, như đã phân tích ở phần trước, chợ vào trung tâm thương mại tại khu vực dự án có bán kính phục vụ khá lớn từ vì thế, quy mô của chợ và trung tâm thương mại có diện tích tương ứng.
Số điểm kinh doanh cho chợ truyền thống khoảng 600-1000 điểm để đáp ứng được nhu cầu của hiện tại cũng như sự phát triển trong tương lai.
Khu nhà ở liền công viên
Đặc điểm về địa hình thường xuyên xảy ra ngập úng của khu vực cùng với thời tiết cực đoan của khu vực dự án, giải pháp thiết kế một hồ điều hòa để điều tiết cục bộ lượng nước khi ngập lụt, cũng như điều hòa không khí vào những thời điểm xảy ra thời tiết khô nóng.
Khu cây xanh tập trung được tạo nên bởi hồ điều hòa và công viên trung tâm. Đây là nơi vui chơi, tập thể dục thể thao cho người dân. Đồng thời không gian cây xanh này cũng là một cảnh quan đẹp và góp phần cải tạo điều kiện vi khí hậu cho khu vực. Vây xung quanh khu vực trung tâm này là các nhà ở có mặt tiền quay ra khu cây xanh mặt nước nhằm tăng tối đa giá trị chức năng ở cho khu nhà ở.
Dọc theo hai tuyến đường chính của biên khu đất là quốc lộ 46 và đường quy hoạch, bố trí các nhà ở có mặt tiền quay ra đường chính, tạo ra các lô đất có giá trị cao về mặt sử dụng cũng như kinh doanh thương mại.
Các công trình được xây dựng lùi vào so với chỉ giới đường đỏ để tạo một khoảng lùi cho góc nhìn đẹp cho các công trình.
Các công trình hạ tầng kỹ thuật, giao thông tĩnh được bố trí hợp lý đảm báo các yêu cầu sử dụng, yêu cầu vệ sinh môi trường và cảnh quan.
Đặc điểm về kinh tế xã hội của khu vực dự án là trung tâm của huyện Nam Đàn, với nhu cầu về kinh doanh thương mại hộ cá thể rất lớn. Thực tế chợ Sa Nam hiện nay chưa đáp ứng được. Giải pháp tổ chức quy hoạch sẽ dành một phần đáng kể trong khu vực dự án để bố trí các không gian kinh doanh buôn bán dạng chợ truyền thống, dạng trung tâm thương mại và dạng nhà phố thương mại. Để mô hình không gian này trên thực tế đi vào hoạt động hiệu quả, 3 mô hình này phải được gắn kết chặt chẽ, hỗ trợ lẫn nhau về cấu trúc, về giao thông và về không gian.
Khu công trình công cộng được bố cục phía bắc khu đất, gồm trung tâm thương mại và chợ được bố trí thành một cụm trung tâm được kết nối trực tiếp với quốc lộ 46 để tạo sự thuận tiện trong giao thông và tạo sự tập trung cao trong chức năng thương mại. Bên cạnh khu chợ và trung tâm thương mại, các nhà ở có chức năng thương mại một phần (chức năng thương mại tại tầng 1) sẽ được bố trí vây xung quanh và hướng mặt tiền vào khu trung tâm Chợ-Thương mại này.
Do khu vực dự án là trung tâm của huyện Nam đàn, như đã phân tích ở phần trước, chợ vào trung tâm thương mại tại khu vực dự án có bán kính phục vụ khá lớn từ vì thế, quy mô của chợ và trung tâm thương mại có diện tích tương ứng.
Số điểm kinh doanh cho chợ truyền thống khoảng 600-1000 điểm để đáp ứng được nhu cầu của hiện tại cũng như sự phát triển trong tương lai.
Khu nhà ở liền công viên
Đặc điểm về địa hình thường xuyên xảy ra ngập úng của khu vực cùng với thời tiết cực đoan của khu vực dự án, giải pháp thiết kế một hồ điều hòa để điều tiết cục bộ lượng nước khi ngập lụt, cũng như điều hòa không khí vào những thời điểm xảy ra thời tiết khô nóng.
Khu cây xanh tập trung được tạo nên bởi hồ điều hòa và công viên trung tâm. Đây là nơi vui chơi, tập thể dục thể thao cho người dân. Đồng thời không gian cây xanh này cũng là một cảnh quan đẹp và góp phần cải tạo điều kiện vi khí hậu cho khu vực. Vây xung quanh khu vực trung tâm này là các nhà ở có mặt tiền quay ra khu cây xanh mặt nước nhằm tăng tối đa giá trị chức năng ở cho khu nhà ở.
Dọc theo hai tuyến đường chính của biên khu đất là quốc lộ 46 và đường quy hoạch, bố trí các nhà ở có mặt tiền quay ra đường chính, tạo ra các lô đất có giá trị cao về mặt sử dụng cũng như kinh doanh thương mại.
Các công trình được xây dựng lùi vào so với chỉ giới đường đỏ để tạo một khoảng lùi cho góc nhìn đẹp cho các công trình.
Các công trình hạ tầng kỹ thuật, giao thông tĩnh được bố trí hợp lý đảm báo các yêu cầu sử dụng, yêu cầu vệ sinh môi trường và cảnh quan.









































































